北京杨林大道

Beijing GRACE HILL
  • 幕墙面积
    25000 平方米
  • 项目状态
    已完工
建设单位

工程地点

北京市顺义区

Shunyi District of Beijing

装饰内容

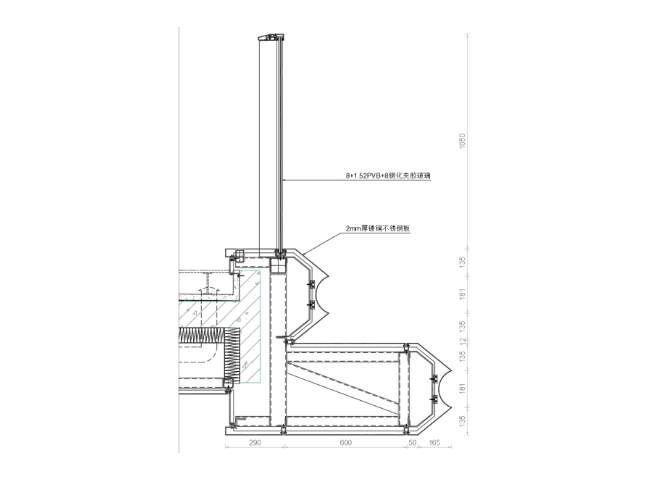
框架玻璃、铝板幕墙;提升推拉门、弧形镀铜不锈钢装饰飘带

Frame glass, aluminum curtain wall; Lift sliding door, arc copper plated stainless steel decorative streamers

产品特点