马来西亚槟城英特尔Pelican

Malaysia Penang Intel Pelican
  • 幕墙面积
    22000 平方米
  • 项目状态
    已完工
建设单位

工程地点

马来西亚槟城

Penang, Malaysia

装饰内容

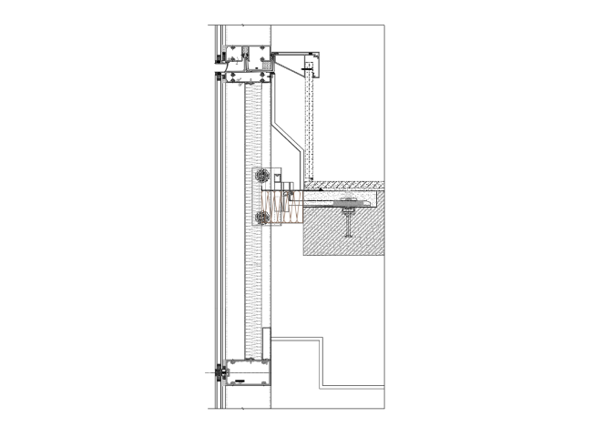
单元式玻璃幕墙、框架式璃墙幕墙、穿孔铝板、预制混泥土板、雨篷

Unit glass curtain wall, frame glass wall curtain wall, perforated aluminum plate, prefabricated concrete plate, awning

产品特点